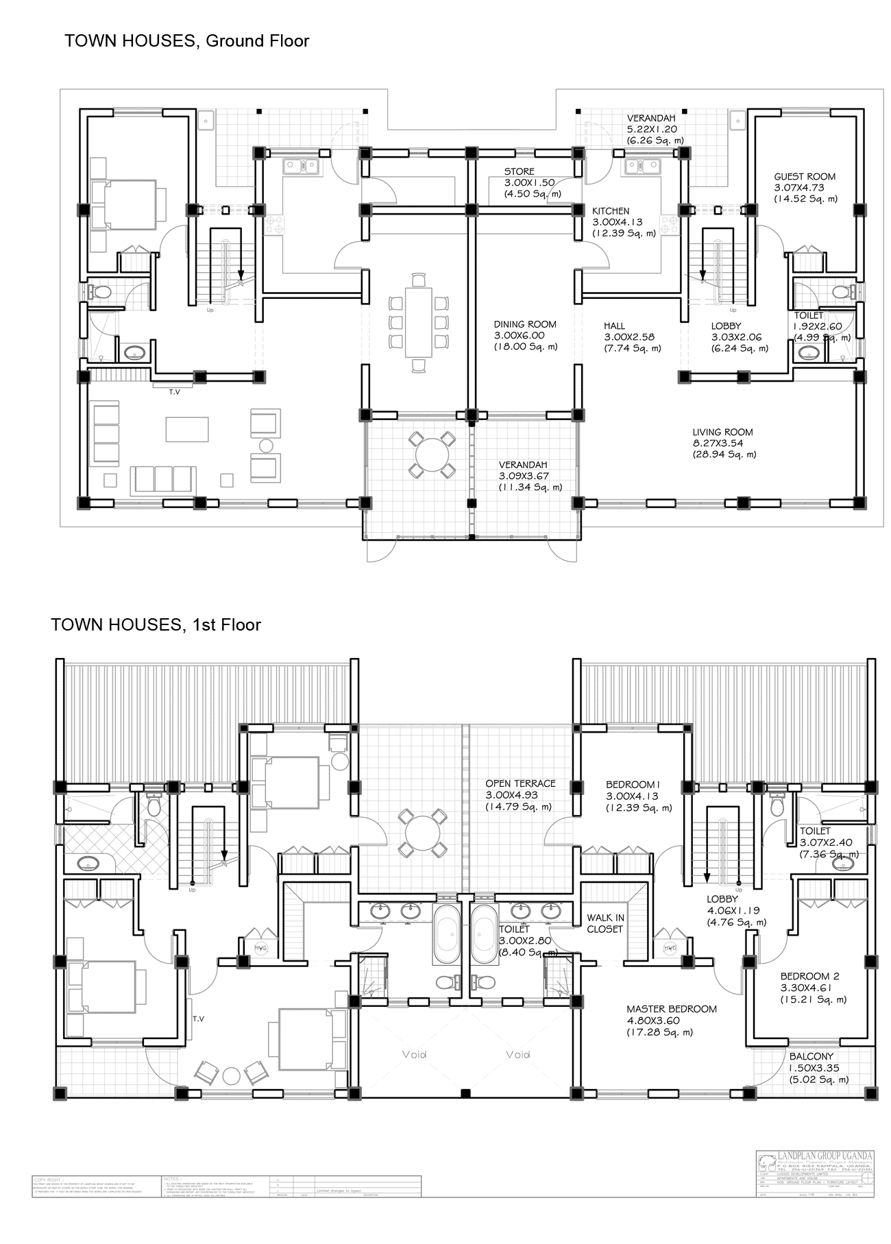
TOWN HOUSES

Set in a street are 16 double-storeyed town houses with total living space of 258 square meters (2,777 square feet)

Four bedroom double-storeyed house

Ground Floor

  • Well lit lounge with adjoining 8 seater dining room
  • Fitted kitchen with a walk-in pantry.
  • Laundry area with back service verandah
  • One bedroom/study with separate toilet and shower facility (which doubles as guest cloak room)
  • Back garden

First Floor

  • Bedroom no.1 and no. 2 with shared separate toilet and shower facility
  • Master bedroom with ensuite bathroom, separate shower and his & hers wash hand basins
  • Master bedroom opens out onto a balcony